4 Bedroom Building Plot  Sold STC OIRO £225,000

Hugely historically significant Cruck Barn with tremendous architecturally significant features

Full planning permission granted for conversion to a 4 bedroom, 4 ensuite family home

Approx. 1.45 acres of gardens & grounds

Additional 2.27 acre paddock

Beautiful tranquil situation

EPC Rating G

Bage Mill Cruck Barn lies approx. 7 km north west of the village of Madley and comprises a Listed Grade II Cruck Barn constructed as a threshing barn, probably dating from the mid to late 16th Century. As such, it is a fine example of a vernacular farm building of this region. The Cruck trusses are in remarkably good condition considering their age. Approx. 70m north east of the barn are the vestigial remains of the overshot water mill which was associated with the barn and the powerful stream which operated the mill still flows through the acreage being sold with the barn. Planning permission was granted on the 5th March 2024 for "proposed residential conversion of existing dilapidated cruck frame barn and its associated outbuildings into four bed dwelling". The barn is now being sold, together with approx. 4 acres so th at the purchaser buying th is historically significant barn can sympathetically convert and prolong the life of this special building.


 
  
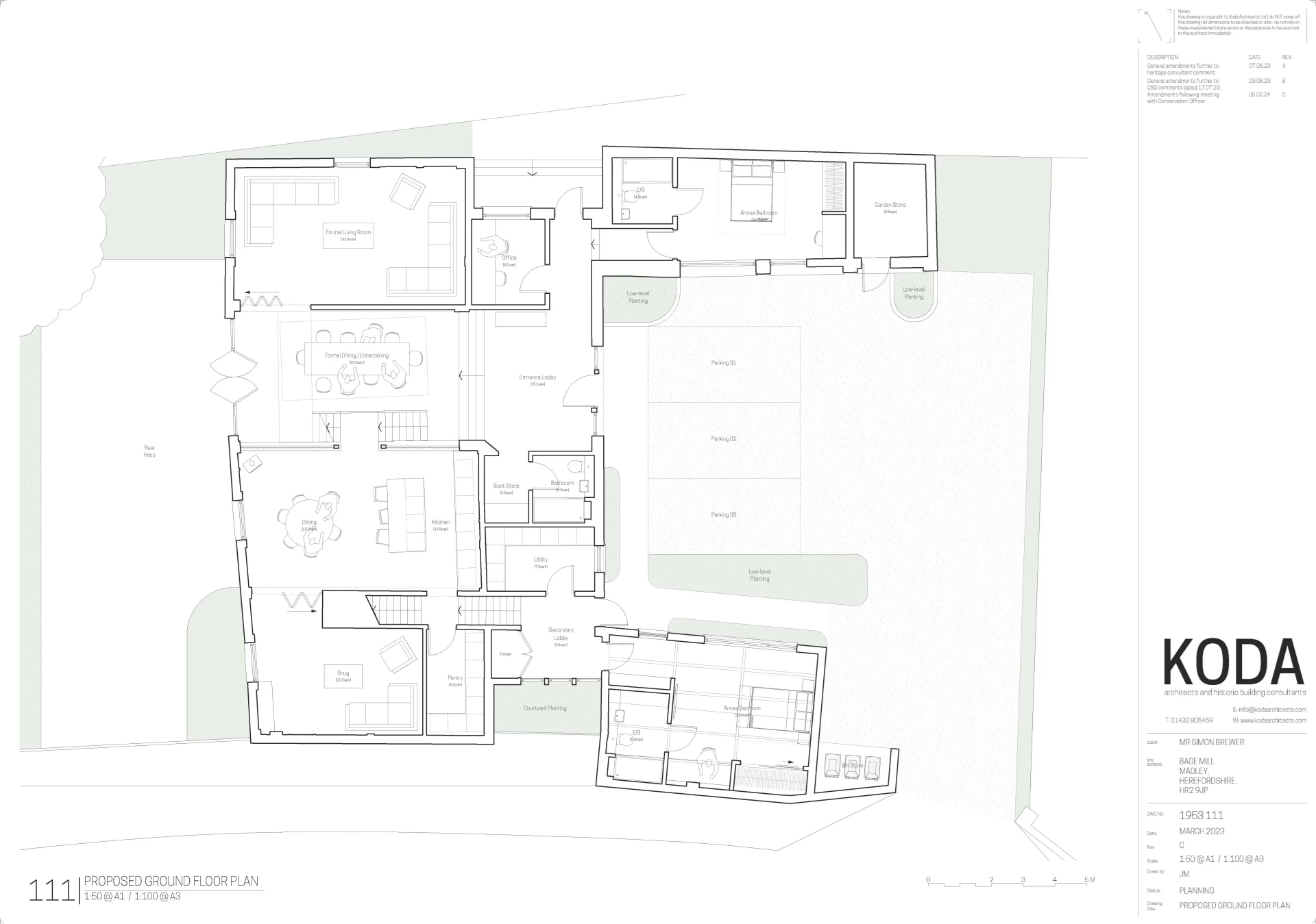
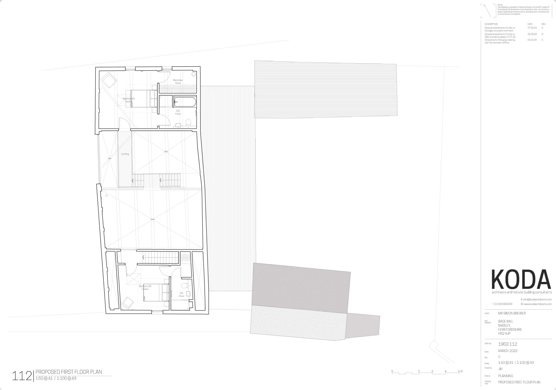
PROPOSED ACCOMMODATION – CRUCK BARN The proposed conversion of the Cruck Barn extends to 4 double bedrooms including two ensuite bedrooms on the ground floor. A feature entrance lobby, leading to a formal dining area, an open-plan kitchen diner with separate pantry, with an adjoining snug, and a separate formal living room form the remaining accommodation on the ground floor. On the first floor there are two further ensuite bathrooms, one having its own stair case, the main space of the first floor will be void over the feature dining room to maximise the glorious character features.  

 
  
PLANNING PERMISSION The Local Planning Authority is Herefordshire Council. Planning Consent and Listed Building Consent were granted on Wednesday 27th September 2023, a copy of the Decision Notice is available
from the Agent. The application that has been approved is detailed below:

P231972/F - Proposed residential conversion of existing dilapidated cruck frame barn and its associated outbuildings into four-bed dwelling.

https://www.herefordshire.gov.uk/info/200142/planning_services/planning_application_search/details?id=231972&-search-term=bage%20mill
  

 
  
P231973/L - LISTED BUILDING CONSENT Please see the proposed scheme drawings for further information. Parties may wish to discuss the scheme with Koda Architects who have developed the scheme.  

 
  
GRADE 2 LISTING The Grade 2 listing from English Heritage reads as “Barn. Possibly C15 with later extensions. Timber-frame with weatherboards, corrugated iron and stone slate roof. Four bays aligned roughly north/south. East elevation has weatherboarded lean-to with three entries, one to left and two, juxtaposed, to right of centre. West elevation has full-height wagon entry to threshing floor in second bay from left. Interior has bays defined by crucks with
collars and cruck spurs; second truss from south end has tie- beam; wall-frames are of heavy scantling with square panels between cill and wall-plate. Bage Mill Farmhouse is not included in this list.”
  

 
  
ACCESS The barn benefits from two separate roadside accesses, located either side of the main barn. The farmhouse will be sold with a separate point of access.  

 
  
SERVICES Bage Mill, to date, has always been served from a natural spring located in the property boundary which has never failed to the knowledge of the vendors. It is anticipated that a mains connection to this property would be straightforward, but buyers are to make their own enquiries with Welsh Water.
The Barn will have a mains electricity connection, and the planning permission includes the installation of a package treatement plant for foul drainage.
  

 
  
TENURE Freehold with vacant possession upon completion of sale.  

Location

Floor Plans

Floor Plan 1

Property Images

Photo 1
Photo 2
Photo 3
Photo 4
Photo 5
Photo 6
Photo 7
Photo 8
Photo 9
Photo 10
Photo 11

Arrange a Viewing

Arrange a Viewing

This property is currently Sold STC. However, register your details below and we will contact you if it becomes available again.

Mortgage Calculator

Mortgage Details

Results

Stamp duty calculation

See full breakdown

Total SDLT due

Below is a breakdown of how the total amount of SDLT was calculated

Up to £0k (Percentage rate 0 %)

Above £0k and up to £0k (Percentage rate 0 %)

Above £0k and up to £0k (Percentage rate 0 %)

Above £0k and up to £0k (Percentage rate 0 %)

Above £0k and up to £0m (Percentage rate 0 %)

Above £om (Percentage rate 0 %)

Please note: This is for illustrative purposes only. The above calculator should not be relied upon when making financial decisions. Please seek advice from a specialist financial provider.

IMPORTANT NOTICE

Descriptions of the property are subjective and are used in good faith as an opinion and NOT as a statement of fact. Please make further specific enquires to ensure that our descriptions are likely to match any expectations you may have of the property. We have not tested any services, systems or appliances at this property. We strongly recommend that all the information we provide be verified by you on inspection, and by your Surveyor and Conveyancer.

View More

Fees

Refundable Holding depositCapped at 1 weeks rent
Security DepositCapped at 5 weeks rent for annual rental under £50,000, or 6 weeks rent for annual rental over £50,000
RentThe agreed monthly rent
Changes to tenancyCapped at £50 inc VAT
Early termination chargeNot exceeding the landlord’s financial losses
Late payment of rentInterest of 3% above BoE base rate for each day the rent is late, once it is 14 days overdue
Replacement keysReasonable costs or give the tenant the option to purchase themselves
Utilities, council tax, communication services, TV Licence etcTenants own responsibility unless otherwise stated in contract
Client Money Protection Scheme Membership detailsThe law requires your membership details
Property Redress Scheme Membership detailsThe law requires your membership details